Realisierte Objekte
Frankfurter Gemeinschaftswohnprojekt: Suffizient leben
Text: Michaela Allgeier | Foto (Header): © Thilo Ross Urh. Nr. 4026999, Quelle: DGJ ARCHITEKTUR GMBH.
Obgleich das Interesse an gemeinschaftlichen Wohnformen immer größer wird, ist das Angebot nach wie vor überschaubar. In Frankfurt am Main gelang es trotz der augenblicklichen Baukrise, das ambitionierte Wohnprojekt „Gemeinsam Suffizient Leben e. V.“ zu moderaten Kosten zu realisieren.
Auszug aus:
QUARTIER
Ausgabe 2.2024
QUARTIER abonnieren
Diese Ausgabe als Einzelheft bestellen
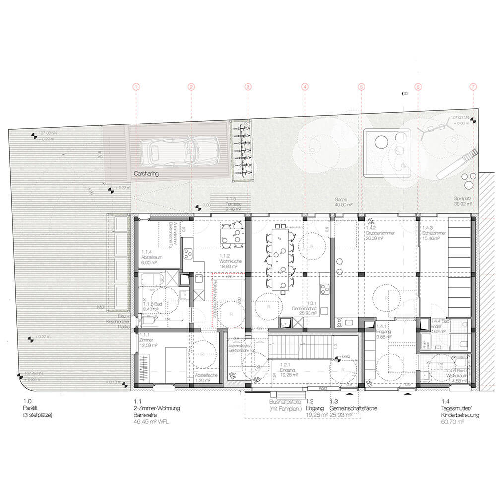
Nach zweijähriger Bauzeit konnten 15 Erwachsene, 10 Kinder und ein Hund am 1. November 2023 das Haus in der Friedberger Landstraße 34 im Frankfurter Nordend beziehen. Es umfasst neun Wohneinheiten unterschiedlicher Größe.
Die Mitglieder der 2017 gegründeten Wohngruppe eint der Wunsch, in einer Hausgemeinschaft zu leben, in der man sich füreinander interessiert und verantwortlich fühlt, und zwar unabhängig vom Alter und Einkommen. Der Begriff „suffizient“ ist als ausdrückliches Bekenntnis zum Nachhaltigkeitsgedanken zu verstehen. Konkret bedeutet das: die Angemessenheit der Wohnraumgröße zu hinterfragen und somit platzsparend, energieeffizient und kostengünstig zu bauen, ohne bei der Wohnqualität Abstriche machen zu müssen.
Mit der DGJ Architektur GmbH fand die Wohngruppe einen idealen Kooperationspartner, denn das Architekturbüro mit Sitz in Frankfurt ist auf nachhaltiges Planen und Bauen spezialisiert und beteiligt sich an vielfältigen Forschungsvorhaben zu diesem Themenbereich.
„Frankfurter Konzeptverfahren“ als Chance für Wohnprojekte
Nicht selten scheitern Wohnprojekte daran, dass geeignetes Bauland gerade in Innenstadtlagen rar und entsprechend hochpreisig ist. Diesem Trend können kommunale Instrumente entgegenwirken, wie das vorliegende Beispiel zeigt. Denn das Grundstück des Neubaus im Frankfurter Nordend stammt aus dem Liegenschaftsfonds der Stadt Frankfurt und wurde auf Grundlage des „Frankfurter Konzeptverfahrens“ im Erbbaurecht vergeben. Mithilfe dieses Verfahrens will die Stadt Frankfurt die Ideenvielfalt selbstorganisierter, gemeinschaftlicher und genossenschaftlicher Wohnformen unterstützen und zugleich für einen preisstabilen Wohnraum sorgen.
Kommt eine Liegenschaft in Betracht, wird sie öffentlich ausgeschrieben, damit sich interessierte Akteure mit einem schriftlichen Konzept darum bewerben können. Zudem wird vorab ein Preis festgelegt. Auf diese Weise verhindert man einen Überbietungswettbewerb von profitorientierten Unternehmen, bei dem gemeinschaftliche Wohnprojekte das Nachsehen hätten. Den Zugschlag erhält somit nicht der Höchstbietende, sondern von Bedeutung ist allein die Substanz bzw. die Qualität des Konzepts, über die ein Beirat entscheidet.
„Die Bewerbungsunterlagen einschließlich der Grundrisse haben wir mit den Vereinsmitgliedern in einem partizipativen Prozess erarbeitet“, berichtet Frederik Ehling vom Büro DGJ Architektur. Das sei zwar zeitaufwendig, aber durch eine aktive Beteiligung entstehe ein vertieftes Verständnis für den Entwurf. „Das stärkt die Motivation und das Durchhaltevermögen gleichermaßen, denn die künftigen Bewohner können sich mit dem Ergebnis identifizieren.“
Zu den Bewerbungskriterien des Konzepts gehörten u. a.:
- soziale Aspekte z. B. die Schaffung gemeinschaftlich nutzbarer Flächen
- die Ausstrahlung des Projekts ins Wohnquartier, z. B. ein Beitrag zur Vielfalt der Bewohnerschaft im Quartier, Zugang weiterer Personen aus der Nachbarschaft zu den Gemeinschaftsflächen
- die Sicherstellung von bezahlbarem Wohnraum, z. B. durch einen Anteil geförderter Wohnungen oder genossenschaftliche Modelle
- städtebauliche Innovationen, z. B. ein Mobilitätskonzept, und
- eine transparente und praktikable Finanzierung
Bereitschaft zum Teilen
Mit der Idee der Suffizienz haben sich alle Mitglieder der Wohngruppe darauf verständigt, etwas weniger private Wohnfläche als sonst üblich zu beanspruchen. Dadurch kann man sich einen 30 m2 großen Gemeinschaftsraum mit Küche leisten. Hinzu kommt ein sogenannter „Joker-Raum“ im vierten Obergeschoss, der je nach Bedarf als Gästezimmer oder Homeoffice dient und – nach Absprache – allen Hausbewohnern zur Verfügung steht.
Kompensiert wird die verringerte Wohnfläche durch zahlreiche Einbaumöbel und Schranknischen, die individuelle Nutzungsoptionen erlauben. Hinzu kommen ausreichende Stauräume im Keller. „Suffizient leben bedeutet, angemessen zu leben“, betont Frederik Ehling. „Den Platz für einen großen Esstisch benötigt man in der Regel nur zu bestimmten Anlässen, wie etwa für eine Geburtstagsfeier.“ Aus diesem Grund könne es sinnvoll sein, zu teilen, anstatt etwas zu besitzen. Eine Gemeinschaftswaschküche macht Waschmaschinen, Trockner und Wäscheständer in den Wohnungen überflüssig.
Reduktion von Verkehrsflächen
Zusätzlicher Raum für gemeinschaftliche Aktivitäten ließ sich durch die Reduktion von Verkehrsflächen gewinnen, was den Energieverbrauch und die Betriebskosten senkt. In den kleineren Wohnungen wurde auf einen Flur verzichtet, die größeren verfügen nur über einen kleinen Flur.
„Mit einer intelligenten Planung kann man erreichen, dass eine Vier-Zimmer-Wohnung trotz einer Größe von nur 85 m2 nicht beengt wirkt“, betont Ehling. Dazu tragen nicht zuletzt die raumhohen Fensterfronten bei. Sie lassen morgens und abends viel Licht in die Wohnungen und gewähren größtmögliche Ausblicke in die Stadt.
Ein besonderes Plus: Im Erdgeschoss befinden sich eine barrierefreie Wohnung sowie Platz für eine Kita, von der das ganze Quartier profitieren kann. Das gilt ebenso für einen Stützpunkt zum Car-Sharing und zur E‑Mobilität.
Vorteile der Holzbauweise
Weitere elementare Beiträge zur Nachhaltigkeit sind der Frankfurt-Aktivhaus-Standard und eine spezifische Form der Holzskelettbauweise, die auf Forschungen von DGJ Architektur basiert. Dafür haben das Bundesinstitut für Bau-, Stadt- und Raumforschung (BBSR) und die Deutsche Bundesstiftung Umwelt (DBU) Fördermittel bereitgestellt.
„Traditionelle Holzverbindungen wie Dübel und Schwalbenschwänze wurden in die digitale Produktion des 21. Jahrhunderts überführt“, erläutert Frederik Ehling. „Die Tragkonstruktion der Stützen, Unterzüge, Decken und Holzwände ließen sich entsprechend ohne metallische Verbindungsmittel herstellen.“ Das Bausystem sei damit im Sinne des zirkulären Bauens sortenrein. Das gelte auch für die Fassade aus Profilbauglas, die man aufgrund der Steckverbindungen einfach zurückbauen könne, so Ehling. Lediglich beim Keller und beim Treppenhaus war die konventionelle Betonbauweise wegen des Feuchtschutzes und zur Aussteifung notwendig.
Trotz des innerstädtischen Straßenlärms erreicht die Holzbauweise durch eine zusätzliche Vorsatzschale die neusten Lärmschutzstandards. Zwischen den Geschossen ist dazu noch eine schwere Schüttung eingebracht, um auch zwischen den Wohneinheiten keine Kompromisse eingehen zu müssen. Für den Brandschutz wurden einige Bauteile ertüchtigt. Die sichtbaren Holzdecken konnten durch etwas mehr Material so ausgeführt werden, dass sie genügend Standsicherheit haben.
Aufgeschlossene Bauherrin
Die Wohngruppe „Gemeinsam Suffizient Leben e. V.“ wollte jedoch selbst keine Genossenschaft gründen. Stattdessen konnte sie die Wohnbaugenossenschaft in Frankfurt am Main eG (WBG) davon überzeugen, die Funktion als Bauherrin und Eigentümerin des Neubaus in der Frankfurter Landstraße zu übernehmen.
Jedes Mitglied der Wohngruppe erwarb Anteile an der Genossenschaft und erhielt einen Dauernutzungsvertrag, der ein lebenslanges Wohnrecht beinhaltet. Angesichts der angespannten Lage auf dem Wohnungsmarkt verspricht dies eine zusätzliche Sicherheit.
Hemmnisse und Erfolgsfaktoren
Bevor der Startschuss für die Bebauung des Grundstücks fiel, waren jedoch einige Probleme zu lösen. Architekt Ehling nennt als Beispiel das Aushandeln des Wegerechts. Am Ende dieses Prozesses zeigte sich, dass das Grundstück geteilt werden musste. „Es waren komplizierte Verwaltungsvorgänge nötig, da das Grundstück aufgrund des Erbbaurechts nicht der Bauherrin gehört, was zu Verzögerungen führte.“
Als positiv wertet er den Beitrag des „Netzwerk Frankfurt für gemeinschaftliches Wohnen e. V.“, das u. a. seit 2009 eine von der Stadt Frankfurt geförderte „Koordinations- und Beratungsstelle für gemeinschaftliches Wohnen“ betreibt. „Wer sich für Wohnprojekte interessiert, erhält dort wertvolle Informationen“, sagt Frederik Ehling. Zugleich unterstreicht er die konstruktive Rolle der Wohnbaugenossenschaft in Frankfurt am Main eG. Diese hätte die Philosophie und den Spirit des Wohnprojekts verstanden. Es sei wünschenswert, wenn sich etablierte und traditionelle Wohnbaugenossenschaften vermehrt für neue Wohnformen öffneten.
Weiterführende Informationen
Projektvorstellung beim Netzwerk Frankfurt für gemeinschaftliches Wohnen e. V.: www.gemeinschaftliches-wohnen.de/projekte/gemeinsam-suffizient-leben-ev
DGJ Architektur: www.dgj.eu
Frankfurter Konzeptverfahren: www.frankfurt.de/themen/planen-bauen-und-wohnen/wohnen/gemeinschaftliches-wohnen/konzeptverfahren
Wohnbaugenossenschaft in Frankfurt am Main eG: www.wbg-ffm.de/ueber-uns
Die Autorin
Michaela Allgeier arbeitet in Troisdorf als freie Journalistin und ist auf den Themenbereich „Demografische Entwicklung“ spezialisiert. Ihr Interesse gilt vor allem den Themen Gesundheit, Pflege und Zivilgesellschaft. In diesem Zusammenhang befasst sie sich regelmäßig mit Fragen der Quartiersentwicklung sowie mit neuen Wohnformen. Sie hat einen Abschluss als Dipl.-Heilpädagogin (Schwerpunkt: Gerontologie) und als Germanistin.









