Realisierte Objekte
Wohnquartier École Maternelle am Petrisberg: Resiliente Struktur, flexible Nutzung
Text: Peter Theissing | Foto (Header): © EIBE SÖNNECKEN
Flexible Grundrisse, effiziente Bauweisen und kommunikative Außenräume prägen zunehmend den heutigen Wohnungsbau. Auf dem Trierer Petrisberg zeigt das Quartier „École Maternelle“ eindrucksvoll, wie sich ehemalige Militärflächen in lebendige Wohnviertel verwandeln lassen. Die klare Architektur und durchdachte Flexibilität von ROSA Wirtz Architektur beweisen hier, wie zukunftsfähiges Wohnen mithilfe von einfachen Konstruktionsprinzipien umgesetzt werden kann.
Auszug aus:
QUARTIER
Ausgabe 6.2025
QUARTIER abonnieren
Diese Ausgabe als Einzelheft bestellen
Bis zu ihrem Abzug im Jahr 1999 wurde das Gelände von der französischen Armee genutzt, die auch namensgebend für den neuen Baustein war. Die Landesgartenschau 2004 gab den Startschuss für die bis heute andauernde Konversion des 70 ha großen Areals zum Naherholungsgebiet, Wohnviertel, Büround Dienstleistungsstandort. Bauherrin ist die EGP GmbH – Gesellschaft für urbane Projektentwicklung mit Sitz in Trier, die seit 2002 eine zentrale Akteurin in der Stadtentwicklung ist und sich auf die nachhaltige Revitalisierung ehemaliger Militär- und Industrieflächen spezialisiert hat. Die Konversion des Petrisbergs zählt zu einem ihrer bedeutendsten Projekte. Das hier neu entstandene Quartier École Maternelle wurde mit seinen 81 Wohneinheiten und einer vielseitigen Infrastruktur zu einem beliebten neuen Stadtteil in Trier.
Bindeglied zwischen Grünraum und neuer Nachbarschaft
Das Quartier ist im Rahmen der Konversion des Geländes nur ein kleiner Teil, der aber im städtebaulichen Kontext eine wichtige Rolle spielt. „Es liegt genau an der Nahtstelle zwischen dem Grünraum des Petrisparks und dem nun anstehenden Konversionspaket im Nordosten – dem Burgunderviertel“, sagt Architektin Sabrina Wirtz. „Insofern sehen wir es einerseits als Auftakt des Ensembles und andererseits als Vermittler zwischen dem öffentlichen Raum im Westen und der geschützten Nachbarschaft im Osten.“
Ein neuer Baustein für den Petrisberg
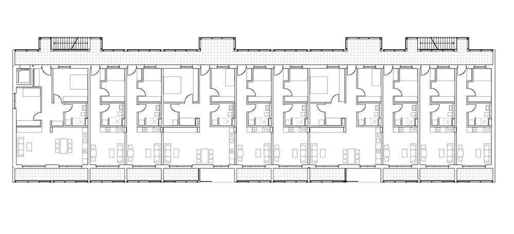
Im Jahr 2018, nach langjähriger Mitwirkung an der städtebaulichen Konzeption des Wohnquartiers, wurden Roger und Sabrina Wirtz mit ihrem in Frankfurt am Main ansässigen Büro ROSA Wirtz Architektur für die Planung des besagten Quartiers beauftragt. In insgesamt fünf Gebäuden entstanden die 81 Wohnungen über einer Tiefgarage, um den ruhenden Verkehr im öffentlichen Raum zu vermeiden. Der Wohnungsmix ist vielfältig und deckt neben verschiedenen Haushaltsstrukturen auch unterschiedliche Erwerbssituationen ab: Das Angebot reicht von kompakten, kleinen Wohnungen über altengerechte Angebote bis hin zu reihenhausartigen Typen in Form von Maisonette-Wohnungen.
Von Scheiben und Achsen
Diese Flexibilität spiegelt sich auch in der Struktur des Wohnriegels wider, den die Architekten in drei Scheiben aufteilten: Zwischen einer Loggienzone zur Straßenseite und einem hofseitigen Laubengang liegt der Wohnraum. Mit ihren wechselnden Breiten und Höhen deuten die Loggien bereits das flexible Prinzip im Inneren an.
„Wir haben den langen Baukörper in 13 Achsen unterteilt. Jede Achse beinhaltet eine Wohnung mit Küche und Bad, einen Freisitz nach Westen und ist über den Laubengang zum Hof erreichbar“, erklärt Wirtz. Die Wohneinheiten können je nach Bedarf horizontal und im Grunde auch vertikal miteinander verbunden werden. Grundlage dafür ist die robuste Grundstruktur: tragende Außenwände aus Kalksandstein mit einem innen liegenden Stützensystem aus Stahlbeton. ROSA trennten das Tragwerk bewusst vom Ausbau, die Haustechnik wurde mit einem Schacht pro Wohneinheit mittig angelegt. „Diese klare Trennung von Tragwerk, Ausbau und Haustechnik hat die Planung deutlich vereinfacht und wird auch zukünftige Umbauten mit vergleichsweise geringem Aufwand möglich machen“, so die Architektin.
Einfach gebaut bis ins Detail
„In der Vergangenheit ging es im Sinne des effizienten Bauens häufig eigentlich nur darum, immer mehr Schichten mit spezifischen bauphysikalischen Funktionen hinzuzufügen.“ Heute ist Sabrina Wirtz dankbar, wenn sie einem konstruktiven Detail ansehen kann, wie es gedacht und gemacht ist – ganz im Sinne des vereinfachten Bauens.
Das zeigt sich auch in der Bauweise der neuen Wohnzeile. Das Kalksandsteinmauerwerk wurde mit dem Bausystem KS-Plus von KS-Original umgesetzt, das 998 × 498 mm große Regelelemente mit vorgefertigten Passelementen kombiniert. Grundlage dafür waren werksseitig elementierte Wandabwicklungspläne, nach denen auch die Sortierung der Großformate für die Anlieferung auf der Baustelle erfolgte.
So konnten die großformatigen Elemente vor Ort direkt den entsprechenden Wandabschnitten zugeordnet und mit einfach zu bedienenden Versetzgeräten vermauert werden. Die Architektin schätzt die hohe Rohdichte und Druckfestigkeit des Kalksandsteins, denn sie bringen zwei entscheidende Faktoren mit: hohe Schall- und Wärmeschutzeigenschaften bei niedrigem Primärenergiebedarf sowie die Möglichkeit, geringe Wanddicken zu realisieren und so wertvolle Fläche zu sparen. Tragende KS-Wände können ab einer Wanddicke von 115 mm realisiert werden.
Mehr als nur Erschließung
Sowohl die Loggienzone als auch der Laubengang wurden den Außenwänden als selbsttragende Stahlbetonkonstruktionen vorgesetzt, sodass auch gedämmte und ungedämmte Bauteile klar voneinander getrennt sind. Während jede Wohnung eine 1,8 m tiefe Loggia als privaten Außenraum erhielt, dienen die Laubengänge mit einer Mindestbreite von 1,50 m der barrierefreien Erschließung. „Der Laubengang ist für uns übrigens auch eine Vereinfachung“, so Wirtz. „Wir brauchen kein Treppenhaus, in dem wir eine bestimmte Mindesttemperatur einhalten müssen. Dort herrscht Außenklima und es gibt nur die Wohnungseingangstür, die gleichzeitig auch die Haustür ist.“ Die Außentreppen wurden mit einem Rankgerüst versehen, an dem seit der Fertigstellung des Quartiers Pflanzen emporklettern und das Gebäude nach und nach begrünen. Eine ebenso „natürliche“ Aneignung findet in den Laubengängen statt. „Wir planen zwar in erster Linie Gebäude. Mit der architektonischen Lösung prägen wir aber immer auch das Verhalten der Menschen, die sie benutzen“, erklärt Sabrina Wirtz. Und so gibt es immer wieder Auskragungen in Form von Balkonen, die von den Bewohneren als weiterer Außenraum genutzt werden. Mal stehen dort Tische und Stühle, mal ein Fahrrad. „Jedes Mal, wenn wir vorbeikommen, ist es schön zu sehen, wie sich das innerhalb der Nutzungsphase und mit den Jahreszeiten verändert, wer sich dort aufhält und kümmert. Das zeigt uns, dass die Idee dieser kommunikativen Zone aufgegangen ist“, so die Architektin abschließend.
Der Autor
Peter Theissing
ist seit 2015 Geschäftsführer der KS-Original GmbH, dem Markenverbund mittelständischer Kalksandstein-Hersteller. Überzeugt, dass zukunftsfähige Architektur eine nachhaltige und wertbeständige Bauweise bedingt, zählen zu seinen Tätigkeitsschwerpunkten der mehrgeschossige Wohnungsbau, die Nachhaltigkeitskommunikation und das Prozessmanagement zum Aufbau eines Kreislaufwirtschaftssystems.
www.ks-original.de








