Realisierte Objekte
Typenbau in Frankfurt: Qualitätsvoll und kostengünstig
Text: Michael Schumacher, Julia Bergmann | Foto (Header): © jotily – stock.adobe.com
Im Frankfurter Stadtteil Oberrad hat schneider+schumacher im Auftrag der ABG FRANKFURT HOLDING im Jahr 2018 ein Wohnungsbauprojekt errichtet. Dafür wurde ein universell einsetzbarer Wohnungsbautypus entwickelt, der an die Bedingungen des Ortes adaptierbar ist und sich so räumlich und architektonisch in sein Umfeld einfügt.
Auszug aus:
QUARTIER
Ausgabe 1.2020
Jetzt abonnieren
Diese Ausgabe als Einzelheft bestellen
Inhalte des Beitrags
- Treppen müssen draußen bleiben
- Kaltmiete von maximal 10 Euro pro m²
- Integrale Planung als Optimierungsprozess
- Reduktion des Bauvolumens
- Modularer Baustein – horizontal und vertikal addierbar
- Der robuste Grundriss mit anpassbarem Rastermaß
- Der kompakte gespiegelte Grundriss
- Ein „ordentliches“ Haus mit solider Materialität
- Haustechnik: Das „Frankfurter Klimaschutzhaus“
- In guter Tradition des Wohnungsbaus
Das Grundstück, auf dem das Wohnungsbauprojekt errichtet wurde, gehörte zu den unbebauten Brachen in Oberrad, dessen Neuerschließung durch ein Umlegungsverfahren der Stadt Frankfurt möglich war. Es orientiert sich in seiner Lage zu den gärtnerisch genutzten Wiesen am Mainufer und hat ein relativ starkes Gefälle von rund 4,5 m. Um den großen Höhenunterschied zu überwinden, entstanden die beiden Zeilen parallel zum Gefälle, der begrünte Hof dazwischen wurde in der Höhe entsprechend modelliert und als Spielfläche gestaltet. Das Gebäude oberhalb des Hangs erhielt außerdem eine Unterkellerung inklusive einer Tiefgarage mit 20 Stellplätzen. Die städtebauliche Einbettung mit Satteldächern – angepasst an die Umgebungsbauten – wirkt kompakt, aber selbstverständlich. Die 46 Wohnungen sind in zwei Zeilen auf drei bzw. vier Geschossen untergebracht. Der Wohnungsmix umfasst Zwei‑, Drei- und Vier-
Zimmer-Wohnungen mit Größen von 46 bis 89 m² – also Wohnungen für Alleinstehende, Paare und junge Familien.
Treppen müssen draußen bleiben
Auf den ersten Blick mutet das Wohngebäude nicht ungewöhnlich an: eine Lochfassade mit raumhohen schmalen Fenstern, robuste Schiebeläden, Putzfassade mit Besenstrich, Satteldach. Erst auf der anderen Seite des Zeilenbaus zeigt sich das wesentliche Charakteristikum: ein außenliegendes Treppenhaus als leichte Konstruktion vor dem eigentlichen Bauvolumen. Verzinkter Stahl, industriell gefertigte Roste und rohe Betonoberflächen verleihen dem Bauteil etwas Funktionales. Obwohl diese Assoziation aufkommen mag, hat das Haus mit einem Laubenganghaus nichts gemeinsam. Es handelt sich vielmehr um einen klassischen Zweispännertyp. Die seitlich an das Treppenhaus angelagerten Balkone bieten zusätzlich jeweils einen privaten Freibereich pro Wohnung. Das offene bauliche Element des Treppenhauses bietet nicht nur Licht und Luft für die Bewohner, in der alltäglichen Benutzung gewinnt es über seine Funktion hinaus auch eine soziale Qualität. Farbige Brüstungsblenden, Sonnenschirme und Blumentöpfe beleben die Fassade, Kinder spielen auf und unter den Treppenläufen, die Terrassen und Balkone werden zu Aufenthaltsorten – so wird die Fassade zum Ort der Kommunikation.
Kaltmiete von maximal 10 Euro pro m²
Die Wohnungsbaugesellschaft ABG FRANKFURT HOLDING wollte anhand dieses Modellprojekts zeigen, dass qualitativ hochwertiger Wohnraum im Neubau zu einem für Frankfurter Mietverhältnisse moderaten Preis von 10 Euro kalt pro m² geschaffen werden kann, wenn man vorausschauend plant, und zwar einfach und kompakt. Das gesellschaftliche Problem war hinreichend bekannt: Der Druck auf die Wohnungswirtschaft, Wohnraum in allen Preissegmenten zu schaffen, ist stetig gestiegen. Durch den zunehmenden Druck auf den Wohnungsmarkt und die damit verbundenen steigenden Mietpreise ist es aus sozialen Aspekten heraus besonders notwendig, bezahlbaren Wohnraum bereitzustellen. Mit 10 Euro kalt sollte also eine Miete angeboten werden, die rund 20 % unter den üblichen Preisen bei Neubauten der ABG und rund ein Drittel unter den in Frankfurt am Main auf dem freien Wohnungsmarkt realen Preisen liegen sollte.
Integrale Planung als Optimierungsprozess
Um sich dieser Aufgabe zu stellen, bildete sich ein interdisziplinäres Team aus Architekten und Fachplanern, die von Anfang an die wesentlichen Planungsentscheidungen gemeinsam trafen. In regelmäßigen Workshops erarbeitete das Team zunächst ortsunabhängig Optimierungsvorschläge für Erschließung, Grundrissstruktur, Tragwerk, Baukonstruktion und haustechnische Versorgung. Erklärtes Ziel: ein möglichst einfaches Haus mit sich wiederholenden Bauteilen zu entwickeln, ohne jedoch die architektonische Qualität zu vernachlässigen und hier eine große Planungsdisziplin in allen Aspekten aufzubringen. Eine vernünftige Materialität war den Architekten dabei besonders wichtig, den Statikern eine einfach zu erstellende, besonders effiziente Tragstruktur und den Haustechnikern ein innovatives Energiekonzept, das in angemessenem Maße den Primärenergiebedarf gering hält, ohne jedoch ein Passivhaus zu sein.
Reduktion des Bauvolumens
Eine Kernidee der Architekten war es, das zu errichtende und zu beheizende Bauvolumen zu reduzieren. Dies gelang ihnen durch das außen liegende Treppenhaus, aber auch durch einen sehr kompakten Grundriss. Durch den Verzicht auf die Einhausung des Treppenhauses wurden nicht nur Baukosten gespart, sondern auch Heizkosten im Betrieb. Das Tragwerk des Treppenhauses ist konstruktiv eigenständig, es waren keine thermischen Trennungen nötig. Aufzüge sollten aus Kostengründen nicht erstellt werden, sie können jedoch nachgerüstet werden.
Modularer Baustein – horizontal und vertikal addierbar
Es stellte sich als sinnvoll und effektiv heraus, einen „universell einsetzbaren“ Wohnungsbautypus zu entwickeln, der in Bezug auf seine Grundeigenschaften optimiert ist und multipliziert werden kann. Er sollte an die Bedingungen des Ortes adaptierbar sein und sich so räumlich und architektonisch in sein Umfeld einfügen. Auch eine Variabilität der Fassade sowie der Dachform wurde vorausgesetzt. Auf Grundlage dieser Parameter lässt sich für jeden Ort ein anderes Haus entwickeln. Ob als Zeilenbau, als Punkthaus – aus statischer Sicht mit bis zu neun Geschossen – oder in der Kombination als Hoftypus sind viele Variationen mit dem Baustein möglich.
Der robuste Grundriss mit anpassbarem Rastermaß
Für eine maximale Ausnutzung auf unterschiedlichen Grundstücksschnitten sollte der Grundriss anpassbar sein. Dazu bedurfte es einer besonders robusten Grundrissorganisation für Modifikationen innerhalb dieser Modulordnung. Dies bezog sich auf die Anpassbarkeit der Rastermaße der Wohnungen sowie die Gebäudetiefe, die aufgrund des Grundstücksschnitts in Oberrad variiert wurde. Aus statischer und wirtschaftlicher Sicht ist der Wohnungstypus mit dem Raster von 6 m in einem Maß zwischen 5,40 und 6,60 m variierbar.
Der kompakte gespiegelte Grundriss
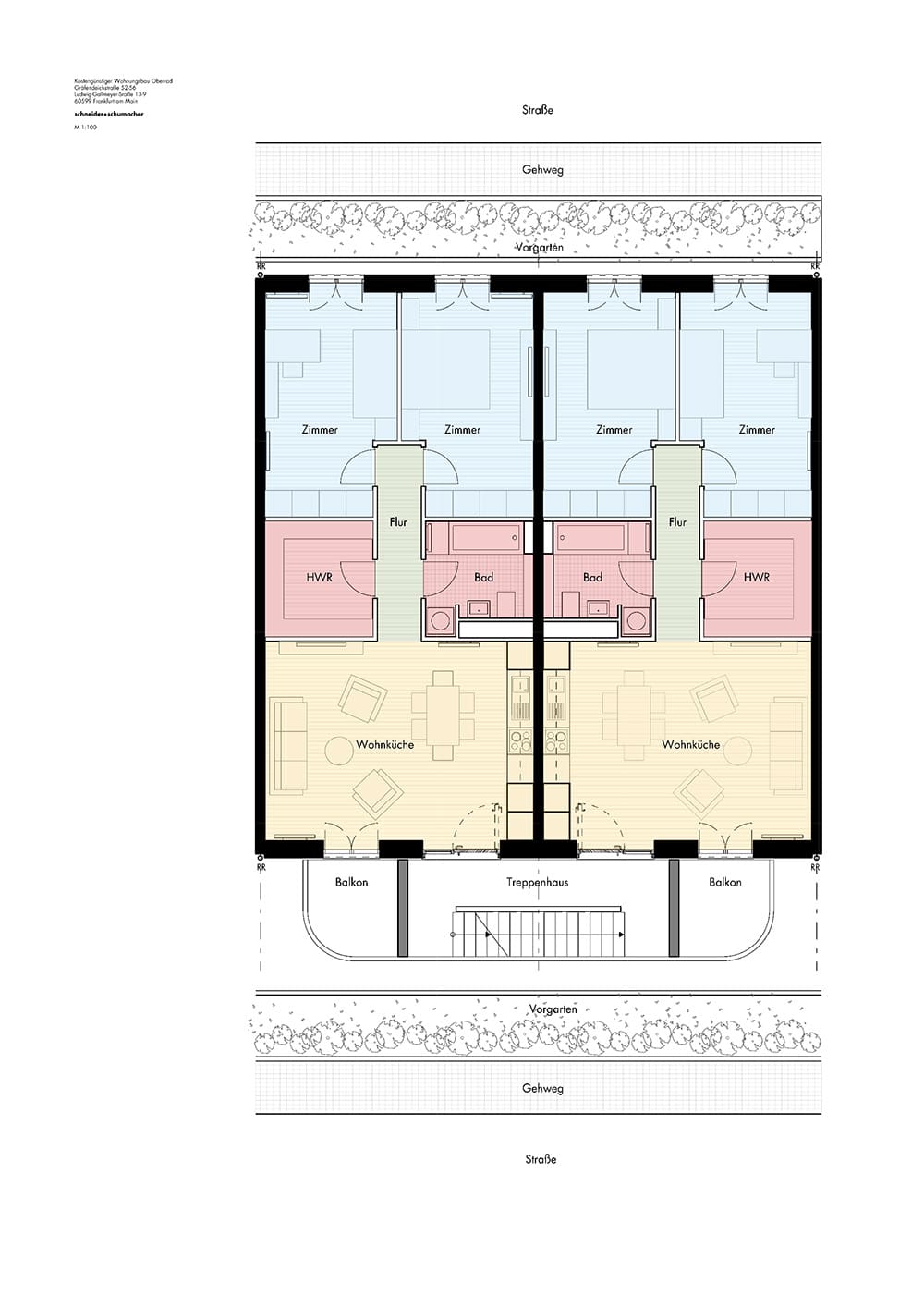
Basis des modularen Prinzips ist ein Grundbaustein mit zwei gespiegelten Wohnungen, der sich reihen und stapeln lässt. Die Wiederholung von Bauteilen wie Fenstern und Treppen mit industriell vorgefertigten Elementen sorgt dabei für Kosteneffizienz. Einfache technische Lösungen bewirken eine effiziente Haustechnik. Das Tragwerk in Schottenbauweise aus Halbfertigteilen in Beton trägt zur statischen Optimierung bei. Die jeweils zu einer modularen Einheit gehörenden zwei Wohnungen werden über die außen liegende Treppe erschlossen. Die Spiegelung des Wohnungsgrundrisses trägt zur Konzentration der haustechnischen Versorgung und Erschließung bei – so befinden sich etwa alle Küchen und Bäder und die dafür benötigten Anschlüsse in zentral angeordneten Schächten.
Die einzelnen Wohnungen sind in einem Vier-Raum-System für eine möglichst neutrale Raumnutzung angelegt. Durch eine Perforation der Schotte ist es denkbar, jeweils einen Raum aus der benachbarten Wohnung hinzuzuschalten oder abzutrennen, sodass also eine Vier- bzw. Zwei-Zimmerwohnung entsteht. Auch die Aufteilung innerhalb der einzelnen Räume ist variabel. So kann die Küche als Wohnküche mit offenem Eingangsbereich, aber auch als separierter Raum gestaltet werden. Für eine dreiköpfige Wohngemeinschaft kann der Grundriss in drei Räume mit einer separaten Gemeinschaftsküche abgewandelt werden. Für Stauraum sorgen in den Wohnungen integrierte Abstellräume, auf einen Keller wurde verzichtet. Auch das Bad liegt in dem unbelichteten Kern. Balkone sind direkt an den Treppenraum angegliedert. Die Wohnungs- und Raumgrößen sind an die Richtlinie des Frankfurter sozialen Wohnungsbaus angelehnt und somit förderfähig.
Ein „ordentliches“ Haus mit solider Materialität
Die Schottenbauweise in Beton wurde zur schnellen und einfachen Erstellung des Bauwerks in Halbfertigteilen mit gleichen Abmessungen und einer großen Anzahl wiederkehrender Elemente geplant. Die Außenwand übernimmt damit eine nichttragende Funktion, hat als raumabschließende Wand nur Dämmfunktion. Der Fokus lag auf der Kosteneffizienz, was aber zu keinerlei Abstrichen bei der baulichen Qualität führte: Statt eines Wärmedämmverbundsystems setzt man mit einem Mauerwerk aus dämmstoffgefüllten Hochlochziegeln auf ein langlebiges und nachhaltiges Material. Die Planung des Mauerwerks wurde genau auf das Format des Steins angepasst, sodass Ziegel auf der Baustelle nicht geschnitten werden mussten und so materialgerecht und kostengünstig eingesetzt werden konnten.
Haustechnik: Das „Frankfurter Klimaschutzhaus“
Die energetische Versorgung erfolgt nach dem eigens für das Projekt entwickelten „Frankfurter Klimaschutzhaus“ mit dem Standard KfW-Effizienzhaus 55. Beheizt werden die Wohnungen überwiegend mit einer Wärmepumpe, unterstützt von einem Gas-Brennwertkessel. Photovoltaikmodule auf dem Dach versorgen die Wärmepumpe mit Strom, während ein Wärmetauscher in der Abluftanlage als Wärmequelle fungiert. Dies sorgt für hohe Energieeffizienz, geringe Emissionen und damit niedrige Nebenkosten für die Bewohner. Die Technikzentrale wurde nach Prüfung eines dezentralen Versorgungskonzepts in einer Technikzentrale pro Zeile in dem Spitzboden des Satteldaches raumeffizient untergebracht.
Es wurden einfache Heizkörper eingeplant, die über kurze Wege vertikal versorgt werden. Die Elektroinstallation in den Wohneinheiten wurde so weit reduziert wie möglich, Installationen vorwiegend in innen liegenden Trockenbauwänden vorgenommen oder Installationsleitungen bei Bedarf im Sockelbereich oder Aufputz geführt. Auf TGAInstallation auf der Rohdecke wurde komplett verzichtet. Statt einer Be- und Entlüftungsanlage wurde lediglich eine Abluftanlage vorgesehen.
In guter Tradition des Wohnungsbaus
Das Ergebnis dieser Planungskonsequenz ist nun in Oberrad zu besichtigen und bereits in dem Architekturführer des Deutschen Architekturmuseums Frankfurt erwähnt. Typologisch begibt sich das Konzept auf die Spuren der Siedlungsbauten des „Neuen Frankfurts“ von Ernst May und Ferdinand Kramer in den 1920er-Jahren. Schon damals waren der Gedanke der industriellen Vorfertigung der Bauteile und damit auch die Möglichkeit der kostengünstigen Vervielfältigung ein wesentlicher Bestandteil bei dem Versuch, sozial verträglich und kostengünstig zu bauen. Eine der weniger bekannten Ernst-May-Siedlungen befindet sich in unmittelbarer Nähe des Grundstücks. „Am Nonnenpfad“, eine kleine Siedlung aus Reihenhäusern, bietet trotz nur teilweiser Sanierung hohe Wohnqualitäten – so knüpft Neues an Altes an.
Nach der Erfahrung in Oberrad verfolgt die ABG FRANKFURT HOLDING die Absicht, die Idee des universell einsetzbaren Bausteins auch auf anderen Baugrundstücken zu realisieren. Untersucht wird auch die Nachverdichtung im Stadtraum. Nach Fertigstellung des Modells in Oberrad wurden die Baukosten für die KG 300+400 mit brutto 1.500 Euro/m² Wohnfläche festgestellt. Dieser Kennwert bezieht sich auf das oberirdisch erstellte Volumen, wodurch das anvisierte Ziel, kostengünstig zu bauen, erreicht wurde.
Der Autor
Michael Schumacher, Büroinhaber mit Till Schneider
Prof. Michael Schumacher, Jg. 57, ist Architekt und gemeinsam mit Till Schneider Inhaber und Geschäftsführer von schneider+schumacher. 1989 gegründet, wurde das Büro mit der roten Info-Box in Berlin bekannt. Seit 2008 besteht das Büro aus verschiedenen Gesellschaften zu den Themen Architektur, Städtebau, Bau- und Projektmanagement sowie Computation & Design mit Büros in Österreich und China.
Julia Bergmann, Architektin bei schneider+schumacher
Nach der Tätigkeit bei verschiedenen Architekturbüros und als selbstständige Architektin arbeitet Julia Bergmann seit 2015 mit dem Schwerpunkt Forschung bei schneider+schumacher in Frankfurt am Main, wo sie u. a. das Projekt ABG Wohnhäuser in Frankfurt Oberrad leitete.









